JUMP

素材图片素材图片
文件类型:JPG
文件大小:393.79KB
尺寸:3508 x 2480

下载所需积分: 4

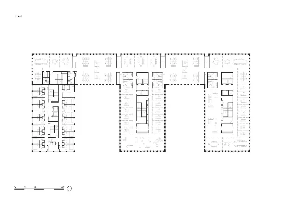
JUMP 位于巴黎奥贝维利耶尔的多元城市区域交汇处。由 Icade 委托,卡恩建筑设计了一座连接“人民广场”和“巴黎门城市森林”两个绿地的建筑。凭借其巨大的入口,JUMP 已成为该地区的中心汇聚点。该建筑集酒店、办公空间、零售空间和停车场于一体。设计融入了该地区的多样建筑风格,增强了这一由地铁 12 号线服务的城市区域的活力。

JUMP 架起了疫情前与当今之间的桥梁。该建筑于 2017 年至 2020 年间设计,并于 2020 年至 2023 年间建成,随着近期全球危机的演变而发展,展现出韧性并确保适应未来挑战。Icade 希望创造灵活、互联且采光良好的办公楼层,提供舒适和便利的使用体验。他们的愿景还包括一个拥有 180 间客房的酒店,面向小预算的客人,战略性地位于“人民广场”,为其带来活力。项目要求建筑易于操作和维护,同时展现出卓越的能源效率。

JUMP 建筑高达 30 米,底面积为 45 x 90 米,整合了两个朝西的空旷区域,连接“人民广场”和“巴黎门城市森林”的绿地。这些空间作为办公入口和餐厅露台的阈值。东立面的五个体量通过四个反射天空的切口相互区分。透明的公共底座展示了花园和邻近建筑,提供了“加朗斯街”与“菲耶特街”之间的视觉连接。北侧是酒店体量,南侧是办公体量,从公园中突现,形成密集城市与郁郁葱葱的绿地之间的对比。顶部三层的阳台打破了立面的僵硬感。零售、门厅、接待区、餐厅、咖啡馆和露台将建筑与生动的地面和屋顶层的公共空间连接起来。

卡恩建筑为 JUMP 制定的建筑原则基于三个关键参数:设计灵活空间、最小化建筑材料和确保结构稳固。建筑的外立面和核心设计为承重结构,无需额外支撑,从而实现开放的无柱室内空间。东侧,薄型预应力空心板使建筑的 13 米宽度得以跨越。西侧,三个突出的体量,每个体量厚 19 米,中央设有交通核心,侧面则是工作空间或酒店房间。

外立面网格每 1.35 米有 43 厘米的实心质量,提供了灵活的工作空间分隔。预制混凝土“T”形元素构成了建筑结构和外立面,没有任何装饰性附加。43 厘米的部分水平对齐,隐藏了板结构,形成了整个梳状体量的统一网格。大型垂直窗户定义了这些不同体量的外立面。酒店设有大型全景窗户,突显了房间的宽敞。从“人民广场”看去,九十个旅行场景照亮了酒店的外立面。

阳极氧化铝的门窗颜色各异:酒店为青铜色,反映其周围环境,办公楼为银色,形成了色调统一的铝/混凝土美学。在街道一侧,门窗被隐藏在内部,增强了混凝土的特性。在花园空旷区域一侧,门窗与外立面齐平,增强了空旷的挖掘效果,并在玻璃和超大铝框中反射天空和环境光。

客户从一开始就设定了雄心勃勃且明确的目标。他们希望创造一个低碳影响、高能效和创新解决方案的示范项目。

卡恩建筑选择低碳材料并整合再利用组件,使碳足迹比 E+C- 标签的 Carbon 1 阈值减少了近 30%。整体温室气体排放为 1124 kgCO2eq/m²,其中 842 kgCO2eq/m² 归因于建筑材料和能源消耗。

能源消耗经过仔细考虑,外立面的极低渗透率为 0.43 m³/(h.m²)。混凝土网格的节奏和厚度,以及门窗的设计和位置,均有助于建筑的热平衡和光线平衡。地热解决方案进一步提高了效率,相较于电力或天然气解决方案具有低碳影响。该建筑获得了包括 HQE Bâtiment Durable Excellent、BREEAM 新建优秀、E+C- 级别 E2C1 和 Label BBCA Performance 在内的认证,体现了可持续、面向未来的建筑解决方案,丰富了其城市环境。这些认证确认了卡恩建筑项目在应对当今环境挑战方面的成功,以及在所有主要领域的高性能。

JUMP 不仅仅是一座建筑;它是一个前瞻性、可持续的建筑解决方案,旨在连接和丰富其城市环境。其多功能设计和对可持续性的承诺使其成为建筑如何演变和繁荣的光辉典范,满足当前和未来的需求。通过 JUMP,卡恩建筑展示了建筑如何在应对环境挑战的同时蓬勃发展,确立了其作为可持续城市整合和适应的杰出典范。

JUMP is located at the intersection of diverse urban areas in Aubervilliers, Paris. Commissioned by Icade, KAAN Architecten designed a building that connects two green zones, “Place du Front Populaire” and the urban forest of “Parc Icade des Portes de Paris”. With its colossal landing, JUMP has established itself as the central point of convergence in the area. The building integrates a hotel, offices, retail spaces, and parking. The design embraces the area's eclectic architecture and enhances the dynamism of this urban area served by Metro Line 12.

JUMP bridges the pre-COVID era with today. Designed between 2017 and 2020 and built between 2020 and 2023, it has evolved in response to recent global crises, resulting in resilience and ensuring adaptability to future challenges. Icade wanted to create flexible, interconnected and well-lit office floors that offered comfort and ease of use throughout. Their vision extended to a hotel with 180 rooms catering to small budgets, strategically positioned to bring animation to “Place Front Populaire”. The brief emphasized buildings that are easy to operate and maintain while demonstrating exemplary energy efficiency.

Rising 30 meters high on a 45 x 90-meter footprint, JUMP integrates two west-facing voids with gardens that connect the green areas of “Place Front Populaire” and “Parc Icade des Portes de Paris”. These spaces serve as entry thresholds for offices and terraces for restaurants. Four cut-outs reflecting the sky distinguish the five volumes on the east facade. The transparent public plinth, which reveals gardens and neighbouring buildings, provides the visual connection between “Rue de la Garance” and “Rue des Fillettes”. To the north, the hotel volume, and to the south, the office volume, emerge from the park, contrasting dense urbanity with lush greenery. The loggias on the top three floors break the rigidity of the elevation. Retail, lobbies, receptions, restaurants, cafes and terraces connect the building to the public realm on vibrant ground and roof levels.

KAAN Architecten’s construction principles for JUMP are based on three key parameters: designing flexible spaces, minimizing building materials, and ensuring robust structures. The façades and cores of the building are designed to be load-bearing without requiring additional support allowing open, column-free interior spaces. To the east, thin prestressed hollow core slabs make it possible to cross the building's 13-meter width. To the west, three protruding volumes, each 19-meter thick, contain circulation cores in the centre and either workspaces or hotel rooms on the sides.

With a solid mass of 43 cm every 1.35 metres, the façade grid on the office side offers flexibility in the partitioning of workspaces. Precast concrete "T" elements form the building structure and façade, with no cosmetic additions. The 43 cm sections are aligned horizontally, concealing the slab structure and creating a uniform grid over the entire comb-shaped volume. Large vertical windows define the façades of these different volumes. The hotel features large panoramic windows that highlight the spaciousness of the rooms. From the “Place du Front Populaire”, ninety travel scenes illuminate the façade of the hotel.

The anodized aluminium joinery varies in colour: bronze for the hotel, reflecting its immediate environment, and silver for the offices, creating a tone-on-tone aluminium/concrete aesthetic. On the street side, the joinery is hidden inside. This increases the character of the concrete. On the garden voids side, the joinery is flush with the façade, enhancing the excavation effect of the voids and reflecting the sky and ambient light in the glass and oversized aluminium frames.

The client set ambitious and clear objectives from the start. They aimed to create an exemplary project with a low carbon impact, high energy efficiency, and innovative solutions.

The choice of low-carbon materials and the integration of reused components by KAAN Architecten reduced the carbon footprint by nearly 30% compared to the Carbon 1 threshold of the E+C- label. The overall Greenhouse gas emissions stand at 1124 kgCO2eq/m², with 842 kgCO2eq/m² attributed to construction materials and energy consumption.

Energy consumption has been carefully considered, as evidenced by the extremely low permeability of 0.43 m³/(h.m²). The concrete grid's rhythm and thickness, along with the joinery's design and placement, contribute to the building's thermal and light balance. A geothermal solution further enhances efficiency, providing a low carbon impact compared to electric or gas solutions. The building has been awarded certifications including HQE Bâtiment Durable Excellent, BREEAM New Construction Excellent, E+C- level E2C1 and Label BBCA Performance, embodying a sustainable, future-ready architectural solution that enriches its urban environment. These certifications confirm the success of KAAN Architecten's project in meeting today's environmental challenges, and its high performance in all major areas.

JUMP isn't just a building; it's a forward-thinking, sustainable architectural solution designed to connect and enrich its urban environment. Its versatile design and commitment to sustainability make it a shining example of how buildings can evolve and thrive, meeting both current and future needs. With JUMP, KAAN Architecten demonstrates how buildings can flourish while addressing environmental challenges, establishing it as an outstanding example of sustainable urban integration and adaptation.

CREDITS

Architect: KAAN Architecten (Kees Kaan, Vincent Panhuysen, Dikkie Scipio)

Project team: Alessandro Arcangeli, Michael Baas, Beatrice Bagnara, Robin Cals, Maicol Cardelli, Jorge Correia, Daniele Dalbosco, Louise de Chatellus, Javier Cuartero, Marylène Gallon, Renata Gilio, Aleksandra Gojnic, Cristina Gonzalo Cuairán, Sophie Ize, Kees Kaan, Guilherme Miranda, Théodossis Montarnier, Vincent Panhuysen, Nikolina Pavlova, Dikkie Scipio, Joeri Spikers, Jan Teunis Ten Kate, Pauline Trochu, Sophie Twarog, Clémence Vallée, Claudio Zampaglione Programme: Offices, hotel, retail, parking Urban design: Denerier + Martzolf urbanistes, Paris

Design team

Project Management: SCO coordination and MOEX, Paris Construction advisor: EVP, Paris Construction W(engineering): ALTO, Paris Construction E(lectricity): ALTO, Paris Technical installations advisor: ALTO, Paris Façade advisor: RFR, Paris Fire safety advisor: CSD Associés, Paris Acoustics advisor: Acoustique & Conseil, Paris Sustainability & Commissioning: SINTEO, Paris Building costs advisor: VPEAS, Paris Landscape designer: BASE, Paris Infrastructure, roads and utilities: ATEVE, Paris Kitchen advisor: Restauration Conseil, Ivry-sur-Seine Hotel consultant: HPVA, Paris Safety coordination: QUALICONSULT, Paris BIM Manager: R-BIM, Courbevoie Building control office: SOCOTEC, Villepinte

建筑空间
建筑图纸及风格
设计师 / 公司
国家与地区
纸张 / 排版 / 文本
时间
相关内容
会员专属

开通会员后,每月可获得1000积分,积分可用于下载素材。

高校机构及学生认证免费*

推荐