阿利坎特会议中心-Javier de las Heras

素材图片素材图片
文件类型:JPG
文件大小:222.57KB
尺寸:1500 x 1002

下载所需积分: 2

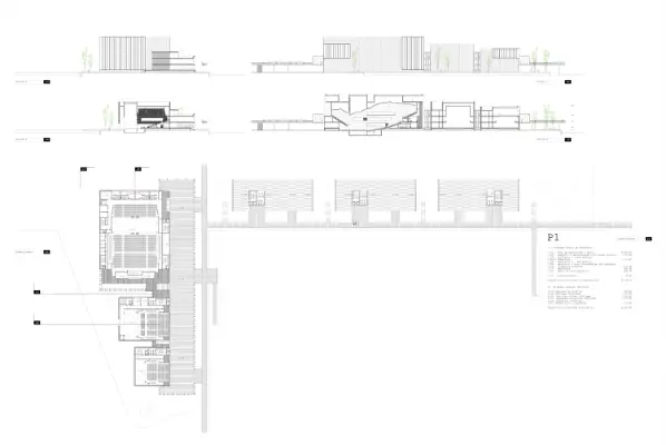
阿利坎特市会议中心 是 Javier de las Heras Solé 为阿利坎特市政府设计的2024年第二名竞赛作品。项目位于西班牙阿利坎特的海滨环境中,规模较大。主要材料为金属和木材。评审了同一竞赛的另外三个提案。

平台

将底层抬升至1.50米的高度,以获得更好的海景。平台、两条坡道和楼梯——也可作为看台——被一个大悬挑的屋顶保护,作为外部和内部之间的中间空间。这里是一个聚会和交流的场所,同时也是一个能够面向大海、阅读、散步的私密空间。

观景画廊

展览区域设在一层,形成一个大型开阔的空间,类似于观景画廊,并在底层平台上形成一个大挑檐的遮蔽。这个轻巧的元素透明,并通过连续的屋檐和垂直百叶窗保护免受太阳辐射。

露台-阳台

在一层的展览空间上方,其屋顶上设有一个露台,一个大型的户外广场,是面向地中海和阿利坎特市的阳台。

天桥-凉棚

在一层的天桥作为统一所有碎片的元素,将提案中的所有部分连接起来。它允许建筑群更灵活地运作——可以直接进入一层——并提供沿海散步的体验。同时,它作为一个凉棚,在太阳辐射最强的月份提供必要的阴影。

Bateig石块

会议区域的部分以非常基本的形式分布,如同三个Bateig石块的代表。三个沉重、封闭的体块上出现了不同的开口,这些开口由垂直百叶窗的木材片组成,用于视线和通风。

悬挂体块

与三块石块形成对比的是,办公区域以悬挂的棱柱体形式呈现,其中留出的空间与占据的空间同样重要。轻巧的木制元素通过断续布局,避免形成物理障碍,使城市空间更加流畅,并实现与城市和海洋的更好连接。

Centro de Congresos de la Ciudad de Alicante is a second prize competition entry by Javier de las Heras Solé for Ayuntamiento de Alicante in 2024. It is located in Alicante Spain in a seaside setting. Its scale is large. Key materials are metal and wood. Review the 2 proposals for the same competition.

Trabajar a partir de la suma de fragmentos, de reiteraciones sucesivas. Simplificar la complejidad de un programa tan extenso mediante la disposición de piezas de distintos tamaños de forma clara y eficaz. Un orden riguroso desde una estricta ortogonalidad para resolver los diferentes usos y actividades de un equipamiento de estas características. Un emplazamiento que exige un tratamiento del espacio público como su principal protagonista y por su escala, una suma de edificaciones que conforman ciudad, que definen una nueva fachada de bienvenida desde el mar. Una infraestructura capaz de relacionarse con el paseo marítimo de Alicante, con su puerto y su ciudadanía.

Plataforma

Levantar la planta baja a una altura de 1,50m para tener una mejor vista al mar. Una plataforma, dos rampas y escaleras -también como gradas- protegidas por un gran voladizo como espacio intermedio entre exterior e interior. Lugar de encuentro, de reunión y también de una posible intimidad para poder estar frente al mar, leer, pasear…

Mirador-galería

El área expositiva se resuelve en la planta primera con un gran espacio diáfano a modo de mirador-galería que genera un gran porche sobre la plataforma de la planta baja. Un elemento ligero, transparente y protegido de la radiación solar por un alero continuo y lamas verticales.

Terraza-balcón

Sobre este espacio expositivo de la planta primera, en su cubierta, se encuentra una terraza, una gran plaza exterior, un balcón al mediterráneo y a la ciudad de Alicante.

Pasarela-pérgola

Una pasarela -a nivel de la planta primera- como elemento que da unidad a la suma de fragmentos y que une todas las piezas de la propuesta. Permite un funcionamiento más polivalente del conjunto de edificios -pudiendo acceder directamente a la primera planta- y da la oportunidad de tener la experiencia de pasear al borde del mar. A su vez es una pérgola que proporciona unas sombras imprescindibles en los meses de radiación solar más intensa.

Bloques de piedra Bateig

La parte del programa de Congresos se distribuye de forma muy elemental, como una representación de tres bloques de piedra Bateig. Tres volúmenes pesados, opacos, en los que aparecen diferentes aberturas formadas por piezas de madera con lamas verticales para ver y ventilar.

Piezas suspendidas

En contraposición a los tres boques de piedra, el programa de oficinas se resuelve con unos prismas suspendidos donde el espacio que dejan libre es tan o más importante que el que ocupan. Elementos ligeros, de madera, que en su discontinuidad evitan una posible barrera física, permiten una mayor fluidez del espacio urbano para conseguir espacios mejor conectados a la ciudad y abiertos al mar.

建筑空间
局部空间及构件
建筑与环境
国家与地区
时间
自然环境
相关内容
会员专属

开通会员后,每月可获得1000积分,积分可用于下载素材。

高校机构及学生认证免费*

推荐