Villa no.3

下载所需积分: 5
Villa no.3 的诞生源于一种文字游戏;试图建造一座房子,对于居住其中的业主来说,它可以成为 Dueville - Vicenza "意大利" 镇的第三座别墅。
该项目以维琴察以外的一座别墅作为模板;是由建筑师乔瓦尼·玛丽亚·法尔科内托设计的位于尤金山丘的 Villa Vescovi。
如果一座古老的别墅在理想情况下从一个地方飞跃到另一个地方,会留下什么?可能所有与其时代风格相关的东西都会留在地面上。而整体原则、比例、形式则保持完整。
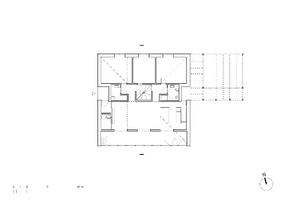
Villa no. 3 采用传统材料如木材、稻草、石灰石膏,适应了当今的建筑工艺。
木结构是预制的,以便在现场施工时间短。绝缘完全由稻草团制成。灰泥涂料采用淡蓝色的石灰石膏。屋顶简单地由波纹板制成。
朝南的生物气候温室降低了冬季取暖的能源需求,相反,在夏季它成为了一个传统的门廊。
根据文艺复兴时期 Costozza - Vicenza 的 Covoli 的例子,有三种结合的自然通风系统。
Villa no.3 was born out of a play on words; trying to build a house that could be, for the homeowners who would live in it, the third villa in the town of Dueville – Vicenza (Italy).
The project takes as its model a villa other than the Palladian tradition of Vicenza; Villa Vescovi in the Euganean hills designed by the architect Giovanni Maria Falconetto.
What remains of an ancient villa if it is ideally moved in flight from one place to another? Probably everything that links it to the style of its time remains on the ground. Instead, the holistic principles, the proportions, the forms remain intact.
Villa no. 3 is built with traditional materials such wood, straw, lime plaster, adapted to today's building processes. The wooden structure is prefabricated in order to keep construction time on site short. The insulation is completely made of straw bales. The plasters are made of lime painted light blue. The roof is simply made of corrugated sheets. The bioclimatic greenhouse to the south reduces the energy needs for winter heating, on the contrary it becomes a traditional porch during the summertime.
There are three combined natural ventilation systems on the example of the Renaissance Covoli in Costozza - Vicenza.