砼殿

下载所需积分: 5
东北最大的露面混凝土地下巨型结构
碎片:象征、隐喻、类比等
长春,在过去,曾是东亚最发达的城市之一。如今,它仍然是一个重要的工业中心,回响着昔日的辉煌。它内在的自豪散发出坚定的乐观主义,拒绝屈服。
满洲政权的宫殿占地不大,以至于给我一种过渡性宫殿的印象。然而,其建筑却展现出对细节的精心关注,因为宏伟的屋顶将西方古典元素与克制而精致的装饰相融合。站在宫殿的东北角,由齐康师傅设计的白色满洲政权博物馆呈现出一个轻轻倾斜的屋顶,向着宫殿的主脊低头。
我将这些零碎的片段整合成了上述文字。为了保持博物馆稳定的景观,我认为艺术博物馆应该采取更加谦逊的方式。考虑到宫殿和展览大厅都采用传统结构,我决定引入工业建筑中常见的大跨度结构,创造出广阔的室内空间,有效展示城市内在的自豪感。
我决定采用优雅的曲线,并运用一系列修辞手法,如象征、隐喻和类比,来传达这个伟大城市在这个新时代复兴昔日辉煌的决心。同时,艺术博物馆作为一个当代表现主义的圣殿,解放了我们在日常生活中不断流逝的时间的灵魂,让我们重新审视历史和记忆,从而掌握我们存在的意义。
释放被约束的混凝土与隐形钢
我选择露面混凝土的理由很简单——它固有的工业特性。然而,与刘一春先生和董工先生相比,我对露面混凝土的理解和描绘相形见绌。我决定踏上一段旅程,回到偏远的1930年代,当时早期表现主义盛行,以解放混凝土脱离有序的模具的束缚。依靠我对钢材的熟悉,我将其用作形式支撑,以塑造大跨度的薄壳扫形混凝土穹顶。针对项目建筑师黄河对保护层厚度提出的担忧,这可能会遮盖通过BIM技术精心构想的面板接缝、可见接缝和拉杆孔,我向黄河保证,这实际上具有相当的优点。以埃罗·萨林内的混凝土和勒·柯布西耶的灰浆为例,接缝和拉杆孔不是我们要表达的东西。保护层在混凝土表面上建立了一个透明的边界,在光的存在下,混凝土获得了辉煌的光环。随着光线条件的变化,光环中的发光优雅地穿越曲线,展现出一种克制的活力。不,这是迷人的。这是一种迷人的表现主义。
持续推迟的时间表
项目的复杂性超出了预期,不仅因为长春经历了冻结地面期,这意味着在建筑结构封顶之前有三分之一的施工时间无法利用,而且还因为在此期间发生了各种意外的停工。这使我有一段时间怀疑是否能完成。这个隐藏的巨型结构需要细致的施工过程组织,以实现其最终的宏伟叙事。
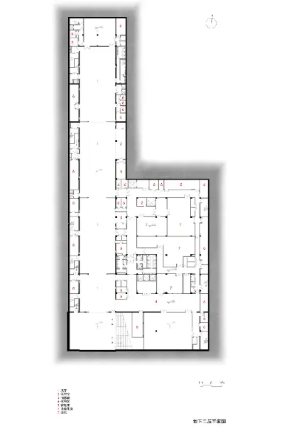
艺术博物馆位于满洲政权宫殿群和中国东北历史博物馆之间的一个剃刀形的场地上。从北到南的垂直差距为7.2米。总建筑面积为16,650平方米。艺术博物馆北侧的最大埋深达到17.67米,而南侧广场入口处为10.47米。结构包括两个地下层。艺术博物馆的深基坑与原宫墙和防御工事的最近距离约为450毫米,需要安装连续钻孔桩和拉杆。此外,为了确保展览厅两侧的平衡,还需要新的锚杆静压桩。此外,必须建造新的地下通道,以与展览厅的地下室建立连接。
高模板装饰的露面混凝土跨度超过10,000平方米。博物馆所需的电缆和管道必须提前嵌入,满足恒温、恒湿控制、抗风、减灾、安全以及消防安全要求。艺术博物馆的屋顶包括一个用于社交活动的2000平方米的广场、一个停车场和一个绿色空间。
我们设计了一个单层钢网壳,前面是一系列曲玻璃插入到展览厅主入口前的地面。走下台阶,来到艺术博物馆的主厅,转身便可见到由优雅的拱形框架的展览厅。
连续的屋顶延伸到南部广场,在那里其横截面形成了令人印象深刻的立面。展览厅入口前的景色一览无余,而南部广场则赋予了地球轻盈的感觉。然而,游客永远不会怀疑地下深处有一个深奥的地下宫殿存在,在地球的裂缝中俘获他们的心灵。
深度时间
我对博物馆的着迷在于,它已经超越了单纯的编年史和人类历史成就的描绘。 "博物馆"这个词已经被赋予了比艺术收藏更深层次的意义。如今,博物馆应该深入到地球46亿年的历史中,寻找生命的真正意义以及与时间的相对性。不同的时间尺度会带来不同的历史视角。这就是我所说的 "深度时间"。
在构想空间时,我旨在利用地下结构作为一个起点,来传达 "深度" 的感觉。我还想通过引入一个巨大的尺度来挑战我们对线性时间线的传统思维,这将使观众感到迷失。最终,我在三个这样的空间节点中建立了中心焦点,这些空间节点是27.5米长、18米宽、峰值高度为16.5米的扫形穹顶。整个博物馆由这三个空间节点连接在一起,我希望通过它们引导游客理解 "深度时间" 主题中生命、历史、环境和社会之间的错综复杂关系。这一探索旨在引发对我们未来决策的内省,以及对生活中选择的情节的思考。
我将 "内省" 这个词与 "眼睛" 联系在一起。因此,我决定将类似眼睛的天窗集成到从地面优雅地出现的扫形薄壳穹顶中,引导自然光进入地下空间。眼睛具有明显的象征意义,并放大了自然光在塑造观众的遭遇和解释方面的作用。它们作为引导观众探索在短暂的生命中的时间视角的手段。
阳光照射在我身上
毫无疑问,自然光的存在塑造了艺术博物馆的本质。虽然地下结构通常被视为避难所,但自然光的交织揭示了博物馆庞大的 "深度",赋予了它一种灵性和神圣性。当你站在这些相互连接的空间中间,被天窗引导着,你可能会感受到一种瞬息万变的永恒或者时间本身的本质。自然光所投下的阴影在地面上经历着渐变和延续的变化。起初,你可能会感到一丝不安,然后是越来越强烈的冲动。最终,你会欣赏到光的迷人之处——奇异而又熟悉,虚无而又包裹在其空灵的投影中。这让人想起一句诗:"Que há noite antes e após. O pouco que duramos." "之前和之后都是夜晚。我们短暂的生命。"在这一刻,你可能会遇到痛苦和孤独,同时也会对生活的奇妙性感到惊叹。它唤起了你内心深处的诗篇或者惊叹的即兴舞蹈。
这种光来自二十年前。2003年,我穿过特雷维喷泉附近熙熙攘攘的人群,开始了一次孤独的旅程,前往万神殿。由于阴天,整个神庙在大理石建筑的广阔空间中显得阴沉。站在这座BDO内,我深陷于令人困惑的阴影之中,失去了方向感。突然间,太阳穿过圆顶,用其辉煌的光束穿透黑暗,找到了我。在那短暂的瞬间,我被深深的迷茫和困惑所吞噬。
从地下世界到天上
我将博物馆的复杂功能隐藏在主空间的两侧,强调主空间的纯净性,早期唤起了时间的最常见的感知——永恒。然而,我一直对 "永恒" 这个概念持怀疑态度。也许是由于我们生命的短暂或脆弱,人类倾向于使用广阔而坚实的实体作为永恒的象征,然而这种倾向在很大程度上是虚幻的。在地下的自然光中,在时间的短暂时刻中,在三个空间节点之间联结的不断变化和遥远的照明的追求中,个人可能会暂时体验到永恒的影子,尽管事实上它只是几分钟。无处不在的人群,不受地点限制,以及他们多样化和不断变化的感知在不同时刻,体现了永恒的本质。深宫捕捉了这种短暂的永恒,在看似不动的物质空间中。
一切都引起闪烁
在开幕典礼之前,我穿过展览大厅,前往博物馆的深处,隐藏在黑暗中,目睹了晨光通过眼睛的天窗而降临。过了一会儿,我察觉到一种几乎察觉不到的呼吸,仿佛弯曲的穹顶已经变成了巨大的翅膀,轻轻起伏。艺术博物馆苏醒了,仿佛准备从地球的怀抱中挣脱出来。在一个不起眼的日子里,存在着一种强大力量的存在,地面在颤抖——这确实是一个幸福的时刻。
彩蛋
与5月18日的盛大开幕同时,五道口实验室揭开了他们新成立的Wuto-Art,展示了余廷的艺术才华,其中包括一组穿孔铝板的平面安装。将来,五道口实验室所有建筑项目中都将看到Wuto-Art创作的定制主题穿孔铝板装置和数字衍生品。建筑物的完成并不意味着它的结束,而是标志着一个新周期的开始。
The largest fair-faced concrete underground megastructure in Northeastern China
Fragments: symbols, metaphors, parallels and others
Changchun, in its bygone days, held the esteemed position of being the most developed city in East Asia. Presently, it remains a pivotal industrial center, resonating with echoes of its former grandeur. Its inherent pride radiates an unwavering optimism, refusing to surrender.
The palace of the Manchurian Regime doesn't occupy much area, so much so that it gives me an impression of a transitional palace. However, its construction exhibits meticulous attention to detail, as the grand roofs harmoniously merge Western classical elements with restrained yet exquisite ornamentations. Standing at the northeastern corner of the palace, the white Museum of the History of Northeast China Under Japanese Occupation, designed by Master Qi Kang, features a gently sloping roof that bows beneath the palace's principal ridge.
I gathered these fragmented pieces into the preceding text. To maintain the stable landscape of the museum, I believe the art museum should adopt a more modest approach. With this in mind, I have concealed the art museum, avoiding any alteration to the established ambiance above. Considering both the palace and exhibition hall follow conventional structures, I have decided to introduce the large-span structure commonly found in industrial buildings, creating vast interior spaces to effectively showcase the city's inherent pride.
I have decided to embrace elegant curves and employ a series of rhetorical devices such as symbolism, metaphor, and association to convey the resolution of the great city's pursuit of reviving her former grandeur in this new era. Simultaneously, the art museum serves as a contemporary expressionist sanctuary that liberates our souls from the constant grip of time in our daily lives, allowing us to reexamine history and memory, and thereby grasp the meaning of our existences.
To unleash the constrained concrete with the invisible steel
My rationale for selecting fair-faced concrete is straightforward - its inherent industrial character. However, my comprehension and portrayal of fair-faced concrete pale in comparison to those of Mr. LIU Yichun and Mr. DONG Gong. I have made the decision to embark on a journey to the remote 1930s when early expressionism used to prevail, in order to liberate concrete from the confines of orderly molds. Drawing upon my familiarity with steel, I employ it as formwork to shape large-span thin-shell swept surface concrete domes. In response to the concerns raised by project architect Huang He regarding the thickness of the protective coating, which could obscure the meticulously arranged panel joints, visible joints, and tie rod eyelets meticulously visualized through BIM technology, I assured Huang He that it actually possesses considerable merit. Took Eero Saarinen's concrete and Le Corbusier's mortar as examples, joints and eyelets are not something necessary for us to express. The protective coating establishes a transparent boundary on the concrete surface, and in the presence of light, the concrete acquires a radiant halo. As lighting conditions shift, the luminescence within the halo gracefully traverses the curves, unveiling a restrained dynamism. No, it is enchantment. It is an enchanting expressionism.
A continuously postponed timetable
The project complexity goes beyond expectation, not only because Changchun experiences frozen ground periods, which means that one-third of the construction time cannot be utilized until the structure is topped off, but also due to various unexpected work stoppages during this period. It led me to doubt at one point whether it could be completed. This hidden giant structure requires meticulous construction process organization to achieve its final grand narrative.
The art museum is situated on a razor-shaped site between the Manchurian Regime palace complex and Museum of the History of Northeast China Under Japanese Occupation. There is a vertical differential of 7.2 meters from north to south. The gross building area is 16,650 square meters. The maximum burial depth on the northern side of the art museum reaches 17.67 meters, while at the plaza entrance on the southern side, it is 10.47 meters. The structure comprises two underground levels. The closest distance between the deep foundation pit of the art museum and the original palace walls and fortifications is about 450mm, necessitating the installation of continuous drilled piles and tie rods. Additionally, new anchor rod static pressure piles are required to ensure balance on both sides of the exhibition hall. Moreover, a new underground passage must be constructed to establish connectivity with the basement of the exhibition hall.
The high formwork decorative fair-faced concrete spans over 10,000 square meters. Cables and pipelines required by the museum must be embedded in advance, meeting the requirements for constant temperature and humidity control, wind resistance, hazard mitigation, security, as well as fire safety. The roof of the art museum consists of a 2,000-square-meter plaza for social activities, a parking lot, and a green space.
We designed a single-layer steel mesh shell with curved glass inserted into the ground in front of the main entrance of the exhibition hall. Going down the steps leads to the art museum's main hall, and turning around presents the exhibition hall framed by an elegant arch-shape.
The continuous roof extends uninterrupted until it abruptly terminates at the southern plaza, where its cross-section forms the imposing facade. The vista in front of the exhibition hall's entrance remains unobstructed, while the southern plaza imparts a sense of the earth being delicately lifted. Nonetheless, visitors would never suspect the existence of a profound underland palace within the crevices of the earth, captivating their hearts and minds.
The Deep time
What fascinates me about museums is that they have transcended beyond mere chronicles and portrayal of human historical achievements. The word "museum" has been given new meanings way deeper than collections of art. Nowadays, museums should delve deeper into the 4.6 billion years history of Earth to search for the true meaning of life and its relativity with time. Different temporal scales give rise to different perspectives on history. This is what I call "Deep Time".
When envisioning the space, I aimed to utilize the underground structure as a starting point to convey the sense of "depth". I also wanted to challenge our conventional mindset of a linear timeline by introducing an immense scale that would disorient viewers. Ultimately, I established central focal points in the form of a wing-shaped swept surface dome as spatial nodes, 27.5m in length, 18m in width, with a peak height of 16.5m. The entire museum consists of three of these spatial nodes connected together, through which I sought to guide visitors in understanding the intricate connections between, life, history, environment, and society in the theme of Deep Time. This exploration aims to prompt introspection on our future decisions as well as the plot of choices in life.
I associate the word "introspection" with eyes. Consequently, I made the decision to integrate skylights resembling eyes into thin-shell swept surface domes that gracefully emerge from the ground, guiding the natural light into the underground space. Eyes bear a conspicuous symbolic significance and amplify the role of natural light in shaping the viewers' encounters and interpretations. They serve as a means of guiding viewers towards a contemplation of temporal perspectives within the ephemeral span of their lives.
The sun beats on me
Undoubtedly, the essence of the art museum is shaped by the presence of natural light. While underground structures typically serve as refuges, the interplay of natural light uncovers the profound "depth" concealed behind the grandeur of the museum, imbuing it with a sense of spirituality and sanctity. As you stand amidst these interconnected spaces, guided by the interplay of skylights, you may perceive a fleeting illusion of eternity or, perhaps, the essence of time itself. The profound "depth" disorients you within the relentless current of time, which we all traverse from the moment of birth. The shadows cast by natural light undergo a gradual and prolonged metamorphosis upon the ground. Initially, you may experience a hint of restlessness, then a growing compulsion. Ultimately, you come to appreciate the captivating beauty of the light—strange yet familiar, intangible yet enveloped within its ethereal projection. It calls to mind a verse: "Que há noite antes e após. O pouco que duramos." ("There is night before and after. The brief time that we live.") In this moment, you may encounter both anguish and solitude, while also marveling at the wondrous nature of life. It evokes within you a gentle recitation of verses or even an impromptu dance of awe.
This light originates from two decades past. In 2003, I navigated through the bustling masses near the Trevi Fountain and embarked on a solitary journey to the Pantheon. Owing to the clouded sky, the entire temple appeared as a somber figure amidst the expanse of marble structures. Standing within this BDO, I became engulfed in the bewildering shadows, losing my sense of direction. Suddenly, the sun emerged through the dome, piercing the darkness with its radiant beam, which found its mark upon me. In that ephemeral instant, I was consumed by a profound sense of disorientation and bewilderment.
From the Underland to the Celestial
I conceal the intricate functions of the museum on either side of the main space, emphasizing the purity of the main space, which early evokes the most common perception of time - eternity. However, I have always harbored skepticism towards the concept of eternity. Perhaps, due to the brevity or fragility of our lives, humanity tends to employ vast and solid entities as symbols of eternity, yet this inclination is largely illusory. Within the subterranean natural light, in that fleeting moment of time, amidst the pursuit of the ever-shifting and distant illumination that binds the three spatial nodes, individuals may momentarily experience a semblance of eternity, though in truth it amounts to mere minutes. The multitudes, unrestricted by the confines of place, and their diverse and ever-changing perceptions in disparate moments, embody the essence of eternity. The Deep Palace captures this fleeting eternity within its seemingly immobile material expanse.
Everything causes scintillation
Prior to the inaugural ceremony, I traversed through the exhibition hall, making my way to the profound depths of the museum, where I concealed myself within the obscurity, witnessing the descent of the morning sunlight through the eyes' skylight. After a while, I discerned an almost imperceptible breath, as if the curved dome had metamorphosed into colossal wings, gently undulating. The art museum awakened, as if poised to emerge triumphantly from the earth's embrace. There exist moments in one's existence, unassuming days suddenly imbued with the presence of formidable forces, where the very ground trembles - a felicitous occurrence indeed.
Easter Egg
Alongside the grand opening on May 18th, Wutopia Lab unveiled their newly established Wuto-Art, featuring a planar installation of perforated aluminum panels, showcasing the artistic prowess of Yu Ting. In the future, customized thematic perforated aluminum panel installations and digital derivatives created by Wuto-Art will be seen in all of Wutopia Lab's architectural projects. The completion of a building does not signify its conclusion but rather marks the commencement of a new cycle.
CREDITS
Design Firm: Wutopia Lab Chief Architect: Yu Ting Project Architect: Huang He Project Manager: Pu Shengrui Design Team: Pu Shengrui, Pan Dali, Sun Liran (Conceptual Design Phase) Xie Jialin (Drawing Compilation Phase) Installation Design: Kuang Zhou, Huang He, Xie Jialin