Café Teri

下载所需积分: 5
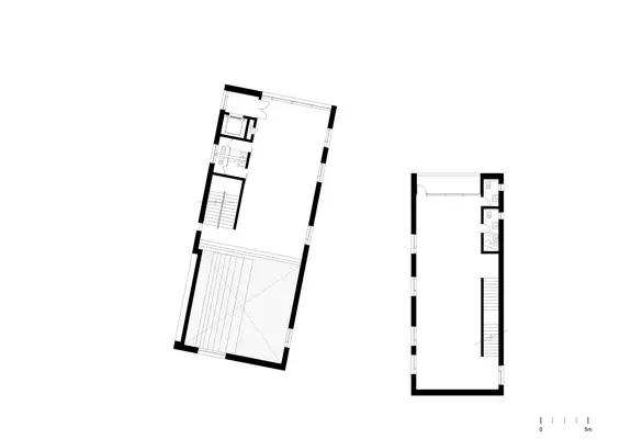
该遗址位于韩国大田鸡龙山东山脚下。毗邻山川平原交汇处,古道入口处。新建筑从从村庄到山的小径的地形开始。
在这个地方,两座建筑围绕着中央庭院彼此相对布置。两座建筑稍稍分开,建筑的墙壁向下流入院子。人造山谷,墙壁和地板之间的区别模糊不清,创造了流向森林的动态流动。流线墙不仅在院子里而且在室内空间都是连续的,通过阶梯空间连接内外景观。后院隆起的地形形成了静态的空间感。建筑的内外成为来往于森林的人们休息和享用美食的场所。
用于构建建筑地形的混凝土砖强调了流动空间的连续性。另一方面,由粗碎的砖块构成的立面墙,通过光影和时间的变化,创造出界限的差异。
The site is located below the eastern foot of Gyeryongsan Mountain in Daejeon, South Korea. Adjacent to the site where the mountains and plains meet, the entrance to the old trail is located. The new building starts from the topography of the trail from the village to the mountain. In this place, two buildings are arranged facing each other around the central courtyard. The two buildings are slightly shifted apart and the walls of the building flow down into the yard. The artificial valley, where the distinction between the wall and the floor is blurred, creates a dynamic flow towards the forest. The fluid wall is continuous not only in the yard but also in the interior space, connecting the inside and outside scenery through a stepped space. The uplifted terrain in the backyard forms a static spatiality. The inside and outside of the building become a place for people who come and go through the forest to rest and enjoy food. The concrete bricks used to construct the architectural topography emphasize the continuity of the flowing space. On the other hand, the façade wall made of rough broken bricks creates a difference of boundaries through the change of light, shadow, and time.